รับออกแบบบ้าน | แบบบ้านสองชั้น | แบบบ้านสไตล์โมเดิร์น
เกี่ยวกับเรา | ติดต่อเรา
ACT
ใบอนุญาตสถาปนิกควบคุม
เลขที่ น 059-63
โทร 02-5092324
แอด LINE @BANGKOKBABPLAN
สเปคแบบบ้าน
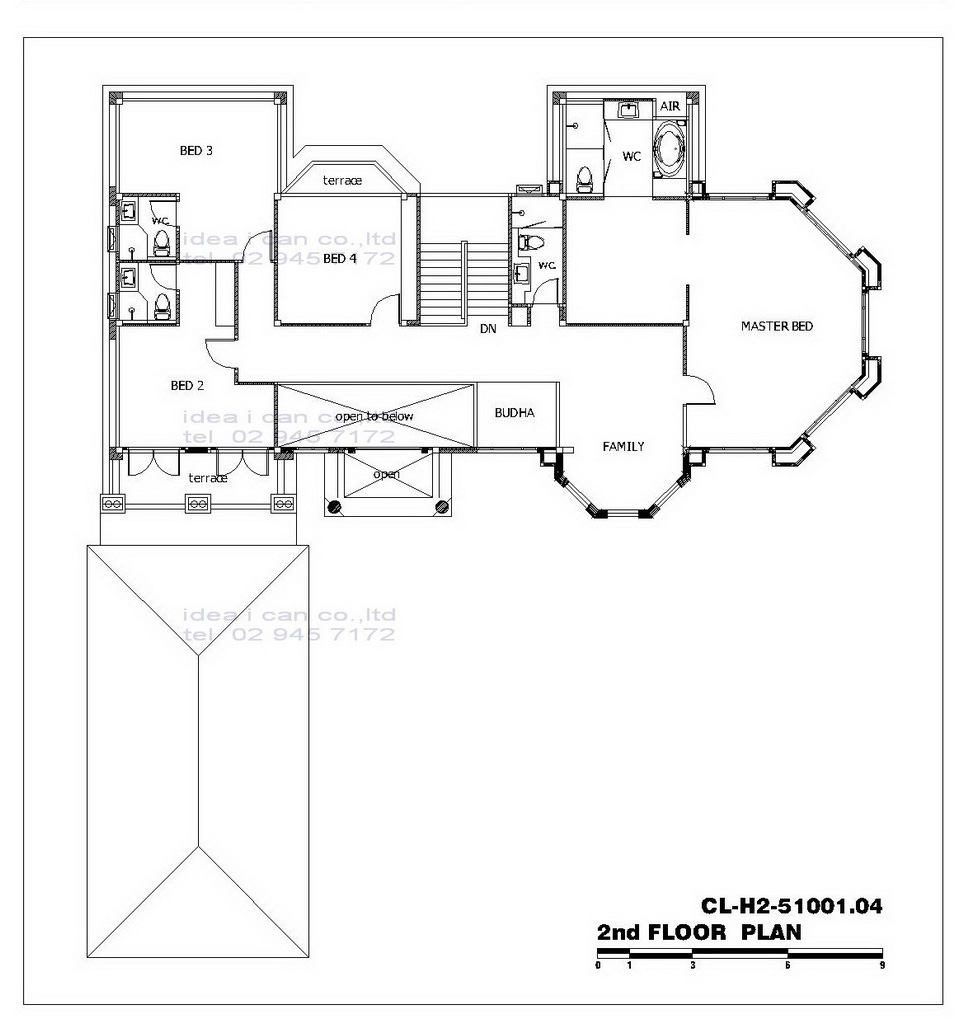
รหัสแบบ: CL-H2-51001.04
บ้านสไตล์ : CLASSIC STYLE
พื้นที่ใช้สอย: 510 ตร.ม.
จำนวนชั้น : 2 ชั้น ['แบบบ้านสองชั้น']
ห้องนอน: 5 ห้อง
ห้องน้ำ: 5 ห้อง
ที่จอดรถ: 4 คัน
ที่ดินก่อสร้าง
ขนาดที่ดิน: 225.00 ตร.ว.
ที่ดินกว้าง: 30.00 ม.
ที่ดินลึก: 30.00 ม.
ราคาแบบครบชุด
จำนวนแบบ: 7 ชุด
ราคาแบบ: สอบถาม
ติดต่อซื้อแบบ
สำนักงาน: 02-5092324
บริการ จ-อา: 9:00-18:00น.
(เสาร์- อาทิตย์ นัดล่วงหน้าอย่างน้อย 1 วัน)
สถาปนิก: 082-5514990 (คุณสิริน)
Line ID: gimyong
Email: armarketing57@gmail.com
(เซลล์กรุณาใช้เบอร์โทร 02-5092324)

แบบบ้านสองชั้น 5 ห้องนอน 5 ห้องน้ำ 510 ตร.ม. Classic Style

แบบบ้านคลาสสิค 2 ชั้น,  แบบบ้าน classic style, แบบบ้านสองชั้น, แบบบ้าน 5 ห้องนอน, แบบบ้าน 5 ห้องนอน 5 ห้องน้ำ, แบบบ้าน
แบบบ้าน 7 ชุด
ใน 1 ชุดประกอบด้วย แบบสถาปัตย์, แบบโครงสร้าง, แบบไฟฟ้า, แบบประปา, แบบรั้ว(กรณีเพิ่มเติม) พร้อมดำเนินการขออนุญาตก่อสร้าง จนกว่าจะได้ใบอนุญาตก่อสร้างบ้าน
รายละเอียด
แบบก่อสร้าง CL-H2-51001.04 แบบสร้างบ้านสไตล์โมเดิร์น classic style แบบบ้านสองชั้น 5 ห้องนอน 5ห้องน้ำ พื้นที่จอดรถ 4 คัน รวมพื้นที่ใช้สอย 510 ตร.ม. ที่ดินสำหรับก่อสร้างตามแบบบ้านหลังนี้ 225.00 ตร.ว. หน้ากว้าง 30.00 เมตร ลึก 30.00 เมตร เป็นอย่างน้อย เป็นแบบบ้านสเปควัสดุพรีเมี่ยม ค่าก่อสร้างขึ้นอยู่กับสไตล์ และฟังก์ชั่นใช้สอย สามารถซื้อแบบบ้านหลังนี้สร้างได้
** แบบครบชุด ลูกค้าดำเนินการยื่นขออนุญาตสร้างได้ หรือให้ทางบริษัทดำเนินการให้จนได้ใบอนุญาตก่อสร้างบ้าน

หมวดหมู่ : แบบบ้านคลาสสิค 2 ชั้น แบบบ้าน 2 ชั้น
ขนาด : 5 ห้องนอน 5 ห้องน้ำ
ฟังก์ชั่นใช้สอย : 5 ห้องนอน 5 ห้องน้ำ พื้นที่นั่งเล่น พื้นที่รับประทานอาหาร พื้นที่เตรียมอาหาร ห้องครัว ห้องซักรีด ห้องแม่บ้าน ระเบียง สระว่ายน้ำ พื้นที่จอดรถ 4 คัน

CLASSIC STYLE แบบบ้านสองชั้น 5 ห้องนอน 5 ห้องน้ำ 510 ตร.ม.

แบบบ้านคลาสสิค CLASSIC STYLE แบบบ้านสองชั้น 5 ห้องนอน 5 ห้องน้ำ หลังนี้พื้นที่ใช้สอย 510 ตารางเมตร มีพื้นที่จอดรถสำหรับ 4 คัน เหมาะสำหรับ สร้างบนที่ดิน 225.00 ตารางวา ทีดินกว้าง 30.00 เมตร ลึก 30.00 เมตร สำหรับลูกค้าที่ชอบรูปทรงบ้าน CLASSIC STYLE

การดำเนินงานเขียนแบบ

ทีมงานออกแบบให้คำปรึกษาเป็นการพิเศษตลอดจนส่งมอบงาน ไปสำรวจที่ดินสำหรับปลูกสร้าง เสนอแบบร่างจนกว่าลูกค้าพอใจ ดำเนินการเขียนแบบ ยื่นขออนุญาต จนแล้วเสร็จ สามารถปรึกษาทีมงานได้ตลอดเวลาตามที่ลูกค้าสะดวก สนใจแบบบ้าน CL-H2-51001.04 ลูกค้าเข้ามาคุยที่สำนักงานได้ทุกวัน หรือนอกสถานที่ก็ได้ครับ สามารถดูรายละเอียดการเสนองวดงาน แบบแปลนสำเร็จรูป หรือ ออกแบบใหม่

แบบบ้าน CLASSIC STYLE ท่านอาจสนใจ

แบบบ้านด้านล่างนี้ แสดงแบบบ้านคล้ายกันหรือสไตล์เดียวกัน CLASSIC STYLE แบบบ้าน architect-bkk มีหลายซีรีย์ แบบบ้านเกี่ยวข้องนี้เป็นลักษณะการออกแบบอยู่ใน CLASSIC STYLE ลูกค้าเปรียบเทียบดูแบบบ้านคลาสสิคได้ครับ หากต้องการออกแบบใหม่ แบบพิเศษปรึกษาทีมงานได้ครับ 082-5514990 (คุณสิริน)

แบบบ้านสองชั้น 4 ห้องนอน 4 ห้องน้ำ 444 ตร.ม.
แบบบ้านคลาสสิค 2 ชั้น, แบบบ้าน classic style, แบบบ้านสองชั้น, แบบบ้าน 4 ห้องนอน, แบบบ้าน 4 ห้องนอน 4 ห้องน้ำ, แบบบ้าน , แปลนบ้านพร้อมสระ, แบบบ้าน มีสระว่ายน้ำ
CL-H2-44401.04
4 ห้องนอน 4 ห้องน้ำ 2 ชั้น 444 ตร.ม.
444 ตร.ม. ที่ดิน 34 ม. ที่ดิน 19 ม.

Architect-BKK.com โดย บริษัท บางกอก แบบแปลน จำกัด บริษัทสถาปนิก บริการให้คำปรึกษาออกแบบ เขียนแบบบ้าน บ้านพักอาศัย อาคารสำนักงาน บริการออกแบบตกแต่งภายใน บริษัทรับออกแบบทุกสไตล์ Modern Style Modern Luxury Tropical Style Resort Style Classic Style Thai Modern Luxury Home Contemporary Style โดยทีมงานสถาปนิก

BANGKOK BAB PLAN CO.,LTD.

Copyright ©2551-2569 18ปี Architect-BKK™ Company Limited.

57 ซอยรามอินทรา 65 แยก 4 แขวงท่าแร้ง เขตบางเขน กรุงเทพ 10230